Aquí puede configurar su sistema de cadenas portacables. Todos los datos introducidos y todas las modificaciones se transfieren a la lista de piezas que se encuentra al final de la página.
Serie E300.3 - cadena portacables para inserción de los cables por el radio exterior
1. Movimientos de torsión posibles
2. pines gruesos - Larga vida útil
3. Interior apto para cables
4. Terminal posible con peine de fijación integrado
5. Versión E, rellenable en el radio exterior
6. Versión Z, rellenable a lo largo del radio interior
7. Contornos exteriores repelentes de suciedad
8. Muy fácil de relllenar
9. Distribución interior posible
{N10}. Disponible con sistema de 1, 2 o 3 cámaras (sistema de cámara múltiple permanentemente inyectado para tendido de cables por separado)
Series E300 )
Series E300.2
11. Diseño con travesaños divisibles que mantiene los eslabones unidos
Disponible anchura interior: 2x 37 mm, 2x 50 mm
Radios de curvatura disponibles: R: 55 hasta 200 mm
Paso: 46 mm por eslabón = 22 eslabones/m
Superposición de los travesaños abatibles a lo largo del mecanismo de apertura,
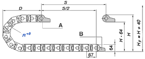
A= Extremo móvil, B= Extremo fijo
Paso: 67 mm
Eslabones por metro: 15
Recorrido: S
Longitud de la cadena = S/2 + K